номинальное напряжение: 10 кВ/35 кВ
Номинальные частоты: 50\60Hz
Сценарии применения: Продукция широко используется в энергетических системах, химической промышленности, металлургии, угольных шахтах, электрифицированных железных дорогах и других особых случаях.
Применение продукта для реактора серии железного ядра сухого типа
Наша фирма может производить Реакторы серии CKSC сухого типа серии железных сердечников с уровнями напряжения 35 кВ и ниже и мощностью 2000 кВр и ниже.
Реактор серии последовательно соединен с высоковольтным конденсатором и подключен к энергосистеме 6 - 35 кВ для ограничения пускового тока параллельного банка конденсаторов и подавления гармоник электросети.
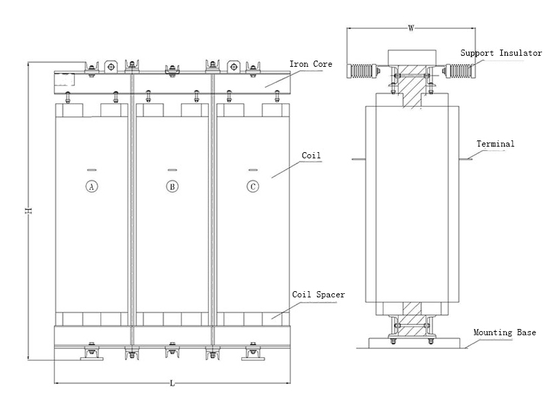
Железная сердечная конструкция реактора сухого типа
Реактор серии железных сердечников имеет две основные структуры: железный сердечник и катушку.
Реактор с железным сердечником сухого типаЯдро представляет собой трехколонную структуру ядра.Основная колонна состоит из ступенчатого или радиального диска, а верхние и нижние железные дуги прямоугольные или круглые.Ядро изготовлено из высококачественных холоднокатаных силиконовых листов.Для того чтобы уменьшить шум сердечника, диск ядра отливают и инкапсулируют в целом высокопрочной смолой.Воздушный зазор между сердечными дисками состоит из нескольких небольших сегментов воздушного зазора, которые могут уменьшить потери сердечника и уменьшить шум.Диск ядра спрессовывается в целое с помощью низкомагнитного винта и железного ярма.Для снижения вибрации активной зоны во время работы, между активной зоной и основанием реактора для буферизации используются амортизационные материалы.
Катушка намотана медной или алюминиевой проволокой, завернутой высококачественными изоляционными материалами.Чтобы предотвратить генерацию циркулирующего тока между несколькими проводами во время процесса обмотки, провод полностью транспонируется.После того, как катушка намотана, двухкомпонентная эпоксидная смола используется для отливки катушки в вакууме, чтобы гарантировать отсутствие воздушного зазора между витками и слоями обмотки, тем самым уменьшая частичный разряд продукта.

Схематическая схема структуры реактора с железным сердечником сухого типа
Метод проводки реактора серии железных сердечников сухого типа

Характеристики сухого реактора с железным сердечником
1) Сухой реактор с железным сердечником CKSC имеет конструкцию сухого типа с железным сердечником, рассчитанную на трехфазное подключение. Железный сердечник изготовлен из высококачественной электротехнической стали, а колонна железного сердечника состоит из нескольких равномерно распределенных воздушных зазоров, заполненных эпоксидной стеклотканью, что гарантирует сохранение величины зазора при длительной эксплуатации.
2) Общая конструкция сухого реактора с железным сердечником проста, компактна, имеет малый вес, рациональную компоновку и легко устанавливается. Он идеально подходит для внутренних конденсаторных компенсационных рам и шкафных устройств, не загрязняет окружающую среду электромагнитными волнами, не загрязняет нефтью, обладает хорошей огнестойкостью, имеет меньший рассеянный магнитный поток и низкий уровень электромагнитных помех.
3) Катушка изготовлена из эпоксидной смолы, а для усиления катушки внутри и снаружи проложена эпоксидная стеклоткань. Система литья эпоксидной смолой отливается в вакууме, обеспечивая превосходное теплоотведение, хорошие изоляционные характеристики, высокую механическую прочность, хорошую динамическую термостойкость и отсутствие трещин.
4) Катушка, залитая эпоксидной смолой, не впитывает воду, имеет низкий уровень частичных разрядов и может безопасно работать в суровых условиях окружающей среды.
5) Зазор между сердечником и изоляционной трубкой фиксируется эпоксидным клеем, а верхнее железное ярмо и катушка стягиваются стяжным винтом, образуя единое целое, что повышает прочность изоляции между сердечником и катушкой и значительно снижает уровень шума реактора.
6) Специальные изоляционные компоненты установлены между катушкой и сердечником, а также между сердечником и заземлением для обеспечения электроизоляционного расстояния.
7) Сердечник и обмотка реактора не погружены в жидкость. Охлаждение воздушное, без утечек масла, простое в изготовлении и обслуживании, а также в эксплуатации. 8) Для оптимизации конструкции используется специальное компьютерное программное обеспечение, значение индуктивности точное, а повышение температуры имеет разумный запас.
Высоковольтный реактор с сухим железным сердечником для фильтрации последовательных гармоник
1. Высота над уровнем моря не должна превышать 1000 метров.
2. Температура рабочей среды от -25 °C до +45 °C, относительная влажность не должна превышать 90%.
3. Отсутствие вредных газов, легковоспламеняющихся или взрывоопасных материалов.
4. Окружающая среда должна иметь хорошую вентиляцию. Высота над уровнем моря не должна превышать 1000 метров.
Высоковольтный реактор с сухим железным сердечником для фильтрации последовательных гармоник.
Номинальное напряжение системы.
Номинальное напряжение батареи конденсаторов.
Номинальная мощность реактора.
Номинальный ток реактора.
Номинальный коэффициент реактивного сопротивления.
Высоковольтный реактор с сухим железным сердечником для фильтрации последовательных гармоник.
|
Номинальная мощность (квар) |
Тип |
Номинальное напряжение |
Терминал |
Терминал |
Reactance |
Потери (W) |
Мощность конденсатора (квар) |
Вес (кг) |
|
12 |
CKSC-12/10 - 6 |
11 |
381 |
10.5 |
6 |
720 |
200 |
180 |
|
24 |
CKSC-24/10 - 6 |
11 |
381 |
21 |
6 |
750 |
400 |
290 |
|
36 |
CKSC-36/6 - 6 |
6.6 |
228 |
52.6 |
6 |
1050 |
600 |
350 |
|
36 |
CKSC-36/10 - 6 |
11 |
381 |
31.5 |
6 |
1050 |
600 |
350 |
|
60 |
CKSC-60/6 - 6 |
6.6 |
228 |
87.7 |
6 |
1650 |
1000 |
450 |
|
60 |
CKSC-60/10 - 6 |
11 |
381 |
52.5 |
6 |
1650 |
1000 |
450 |
|
90 |
CKSC-90/6 - 6 |
6.6 |
228 |
131 |
6 |
1800 |
1500 |
650 |
|
90 |
CKSC-90/10 - 6 |
11 |
381 |
78.7 |
6 |
1800 |
1500 |
650 |
|
108 |
CKSC-108/6 - 6 |
6.6 |
228 |
157.5 |
6 |
2350 |
1800 |
700 |
|
108 |
CKSC-108/10 - 6 |
11 |
381 |
94.5 |
6 |
2350 |
1800 |
700 |
|
120 |
CKSC-120/6 - 6 |
6.6 |
228 |
175 |
6 |
2750 |
2000 |
780 |
|
120 |
CKSC-120/10 - 6 |
11 |
381 |
105 |
6 |
2750 |
2000 |
780 |
|
150 |
CKSC-150/6 - 6 |
6.6 |
228 |
219 |
6 |
2860 |
2500 |
1050 |
|
150 |
CKSC-150/10 - 6 |
11 |
381 |
131.2 |
6 |
2860 |
2500 |
1050 |
|
180 |
CKSC180/6 - 6 |
6.6 |
228 |
263 |
6 |
2950 |
3000 |
1250 |
|
180 |
CKSC-180/10 - 6 |
11 |
381 |
157.5 |
6 |
2950 |
3000 |
1250 |
|
240 |
CKSC-240/6 - 6 |
6.6 |
228 |
351 |
6 |
3450 |
4000 |
1450 |
|
240 |
CKSC-240/10 - 6 |
11 |
381 |
210 |
6 |
3450 |
4000 |
1450 |
|
300 |
CKSC-300/10 - 6 |
11 |
381 |
262.5 |
6 |
4260 |
5000 |
1650 |
|
360 |
CKSC-360/10 - 6 |
11 |
381 |
315 |
6 |
4850 |
6000 |
2200 |
|
450 |
CKSC-450/10 - 6 |
11 |
381 |
394 |
6 |
5430 |
7000 |
2400 |
|
600 |
CKSC-600/10 - 6 |
11 |
381 |
525 |
6 |
5840 |
10000 |
3200 |
Руководство по заказу
Мы работаем с OEM-производителями. Приведённые выше характеристики являются общепринятыми и приведены только для справки. Они могут быть изменены в соответствии с требованиями заказчика. Если речь идёт о модернизации, пожалуйста, укажите заводскую табличку оборудования, чертежи и причину замены. Таким образом, мы сможем порекомендовать вам альтернативное решение.