номинальное напряжение: 10 кВ/35 кВ
Номинальные частоты: 50/60Hz
Сценарии осуществления: Он используется для подключения устройства SVG и электрической сети для достижения буферизации энергии; Он уменьшает рябь переключателя SVG и уменьшает помехи общего режима; Он подавляет мутацию тока, когда инвертор подключен к электросети и достигает сглаживания тока; При необходимости он может изменить напряжение сетки на напряжение, подходящее для работы инвертора.
Сухой сетевой реактор с железным сердечником (SVG) для компенсации реактивной мощности
Сетевой реактор SVG подключается к входному разъему устройства SVG и выполняет следующие функции:
Он используется для соединения устройства SVG с электросетью для обеспечения буферизации энергии;
Он уменьшает пульсации ключа SVG и синфазные помехи;
Он подавляет искажения тока при подключении инвертора к электросети и обеспечивает сглаживание тока;
При необходимости он может изменять напряжение сети до значения, подходящего для работы инвертора.
Сухой линейный реактор с железным сердечником SVG (компенсация реактивной мощности).
Наша компания производит сухие линейные реакторы с железным сердечником серии CKSC (компенсация реактивной мощности) на напряжение 35 кВ и ниже, токи 25–1000 А и индуктивность более 0,6 мГн.
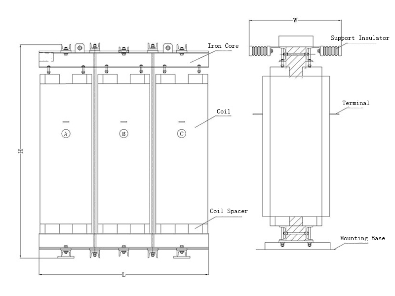
Структура изделия сухого линейного реактора с железным сердечником SVG
Сердечник последовательного реактора с железным сердечником имеет две основные конструкции: железный сердечник и катушку.
Сердечник сухого линейного реактора с железным сердечником SVG имеет трёхколонную конструкцию. Колонна сердечника состоит из ступенчатых или радиальных дисков, а верхнее и нижнее железные ярма имеют прямоугольную или круглую форму. Сердечник изготовлен из высококачественной холоднокатаной электротехнической стали. Для снижения шума сердечник отлит и залит высокопрочной смолой. Воздушный зазор между дисками сердечника состоит из нескольких небольших сегментов, что позволяет снизить потери в сердечнике и снизить уровень шума. Диск сердечника спрессован в единое целое маломагнитным винтом и железным ярмом. Для снижения вибрации сердечника во время работы между сердечником и основанием реактора используются амортизирующие материалы для амортизации.
Катушка намотана медным или алюминиевым проводом, обмотанным высококачественными изоляционными материалами. Для предотвращения возникновения циркулирующего тока между несколькими проводами во время намотки провод полностью транспонируется. После намотки катушка заливается двухкомпонентной эпоксидной смолой в вакууме, что обеспечивает отсутствие воздушного зазора между витками и слоями обмотки, что снижает частичный разряд изделия.

Стандарты на продукцию для сухого сетевого реактора с железным сердечником SVG.
GB/T 1094.6-2011 Силовой трансформатор. Часть 6: Реактор.
NB/T 10289—2019 Технические условия на фильтрующий реактор с железным сердечником для высоковольтных устройств компенсации реактивной мощности.
Основные параметры заказа сухого сетевого реактора с железным сердечником SVG.
Номинальное напряжение системы.
Номинальный ток реактора.
Номинальная индуктивность реактора.
Эксплуатационные характеристики.
|
Модель продукта |
Номинальное напряжение (кВ) |
Номинальный ток (крышка) |
Номинальная индуктивность (мГн) |
Размеры (ДxВxШ) |
Вес |
|
CKSC-10-57.74-31.82 |
10 |
57.74 |
31.82 |
1010X150X600 |
570 |
|
CKSC-10-115.47-15.91 |
115.47 |
15.91 |
1100X1330X600 |
820 |
|
|
CKSC-10-173.21-10.61 |
173.21 |
10.61 |
1160x1420X610 |
1040 |
|
|
CKSC-10-230.94-7.95 |
230.94 |
7.95 |
1360X1460X650 |
1330 |
|
|
CKSC-10-288.68-6.36 |
288.68 |
6.36 |
1430X1560X750 |
1450 |
|
|
CKSC-10-317.54-5.78 |
317.54 |
5.78 |
1430X1500X750 |
1650 |
|
|
CKSC-10 - 346.41 - 5.3 |
346.41 |
5.3 |
1430X1560X750 |
1720 |
|
|
CKSC-10-461.88-3.97 |
461.88 |
3.97 |
1700X1650X850 |
1980 |
|
|
CKSC-10-577.35-3.18 |
577.35 |
3.18 |
1790X1730X860 |
2300 |
|
|
CKSC-10-693.82-2.65 |
693 |
2.65 |
1790X1760X900 |
2830 |