номинальное напряжение: 10 кВ/20 кВ/35 кВ
Номинальная мощность: 630 кВА-5000 кВА
Сценарии применения: Подходит для строительства и преобразования городских и сельских электросетей.
Сертификаты& Стандарты: Сертификат CE·CB, выданный TÜV, IEC EN ISO 9001·14001·45001.
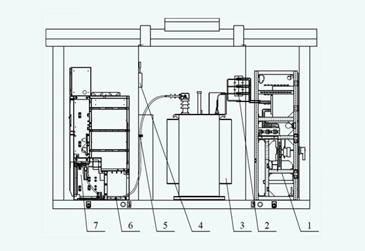
Подстанция блочного типа. Подстанции блочного типа, также известные как сборные подстанции, обеспечивают электроснабжение непосредственно потребителей. Это сборное компактное распределительное оборудование для внутренней и наружной установки, которое объединяет высоковольтное распределительное устройство (помещение высокого напряжения), распределительный трансформатор (трансформаторную) и устройство распределения электроэнергии низкого напряжения (помещение низкого напряжения) в соответствии с определенной схемой электропроводки. Функции снижения напряжения и распределения электроэнергии низкого напряжения органично объединены, а подстанция установлена во влагонепроницаемом, пыленепроницаемом, огнестойком, полностью закрытом, передвижном стальном корпусе, что особенно подходит для строительства и реконструкции городских и сельских электросетей. Высоковольтное помещение – это помещение для подачи электропитания, обычно 35 кВ, 20 кВ или 10 кВ, включающее высоковольтные шины, автоматические выключатели или предохранители, трансформаторы напряжения, разрядники и т. д. Трансформатор расположен в трансформаторном помещении и является основным оборудованием блочной подстанции. В трансформаторном помещении находятся трансформаторы, которые являются основным оборудованием подстанции. В низковольтном помещении находятся низковольтные шины, низковольтные автоматические выключатели, приборы учета и т. д. Линии отводятся от низковольтных шин для подачи электроэнергии потребителям.
Блочные подстанции подразделяются на «треугольные» и «прямоугольные» по компоновке; блочные подстанции «концевого» типа и блочные подстанции «кольцевой сети» по способу подачи высоковольтного электропитания. Обе стороны днища блочной подстанции оснащены подъемными устройствами для подъема, транспортировки и монтажа. Помещения высокого и низкого напряжения могут иметь стандартную конструкцию, а также конструкцию с экранами или каркасную конструкцию.
Первая конструкция отличается высокой степенью полноты, а вторая — компактными габаритами.
Стандарты внедрения
GB 1094. 1-2013: Силовые трансформаторы. Часть 1: Общие положения.
GB 1094. 2-2013: Силовые трансформаторы. Часть 2: Повышение температуры.
GB 1094. 3-2003: Силовые трансформаторы. Часть 3: Уровни изоляции, испытания изоляции и воздушные зазоры для внешней изоляции.
GB 3906-2006:3. 6 кВ-40. Распределительные устройства переменного тока в металлическом корпусе и средства управления 5 кВ GB/T 11022-2011: Общие технические условия для стандартов высоковольтных распределительных устройств и средств управления.
GB 7251. 1-2013: Низковольтные комплектные устройства и средства управления Часть 1: Общие положения GB 14048. 1-2006: Низковольтные распределительные устройства и средства управления Часть 1: Общие положения GB/T17467-2010: Высоковольтные/низковольтные сборные подстанции.
Особенности
+ Компактный размер, небольшая занимаемая площадь, возможность перемещения в любое время по мере необходимости, удобная транспортировка и монтаж;
+ Рациональное распределение структуры, возможность изготовления в форме «треугольника» или «прямоугольника» по мере необходимости;
+ Каждое функциональное помещение независимо друг от друга, а обслуживание и замена деталей удобны и быстры;
+ Корпус имеет естественную вентиляцию, что позволяет снизить нагрев во время эксплуатации;
+ Может использоваться в различных средах с высоким уровнем защиты.
Условия окружающей среды
a Высота над уровнем моря: ниже 4000 м;
b Температура окружающей среды: от -45°C до +45°C;
c Относительная влажность: среднесуточная влажность не более 95%, среднемесячная — не более 90%.
Примечание: Если условия отличаются от указанных выше, необходимо согласовать условия с производителем.
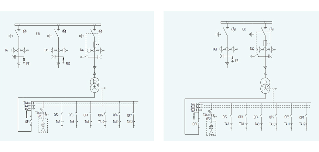
Нетипичная однолинейная схема.
Первичная однолинейная схема подстанции кольцевой сети.
Первичная однолинейная схема подстанции терминального типа.
Чертеж границ блока: (на примере 630 кВА).


